


Chaufferie au bois déchiqueté
Réseau de chaleur
Givry
Maître d’ouvrage
COMMUNE DE GIVRY
Montant travaux – Surface
1.120.000,00 €HT – 100 m2
Perf. Environnementales
Energie bois déchiqueté
Equipe de maîtrise d’œuvre
OUDOT INGENIERIE Bet Thermique mandataire
BESSARD ARCHITECTES Architecture
BPS Bet Structure
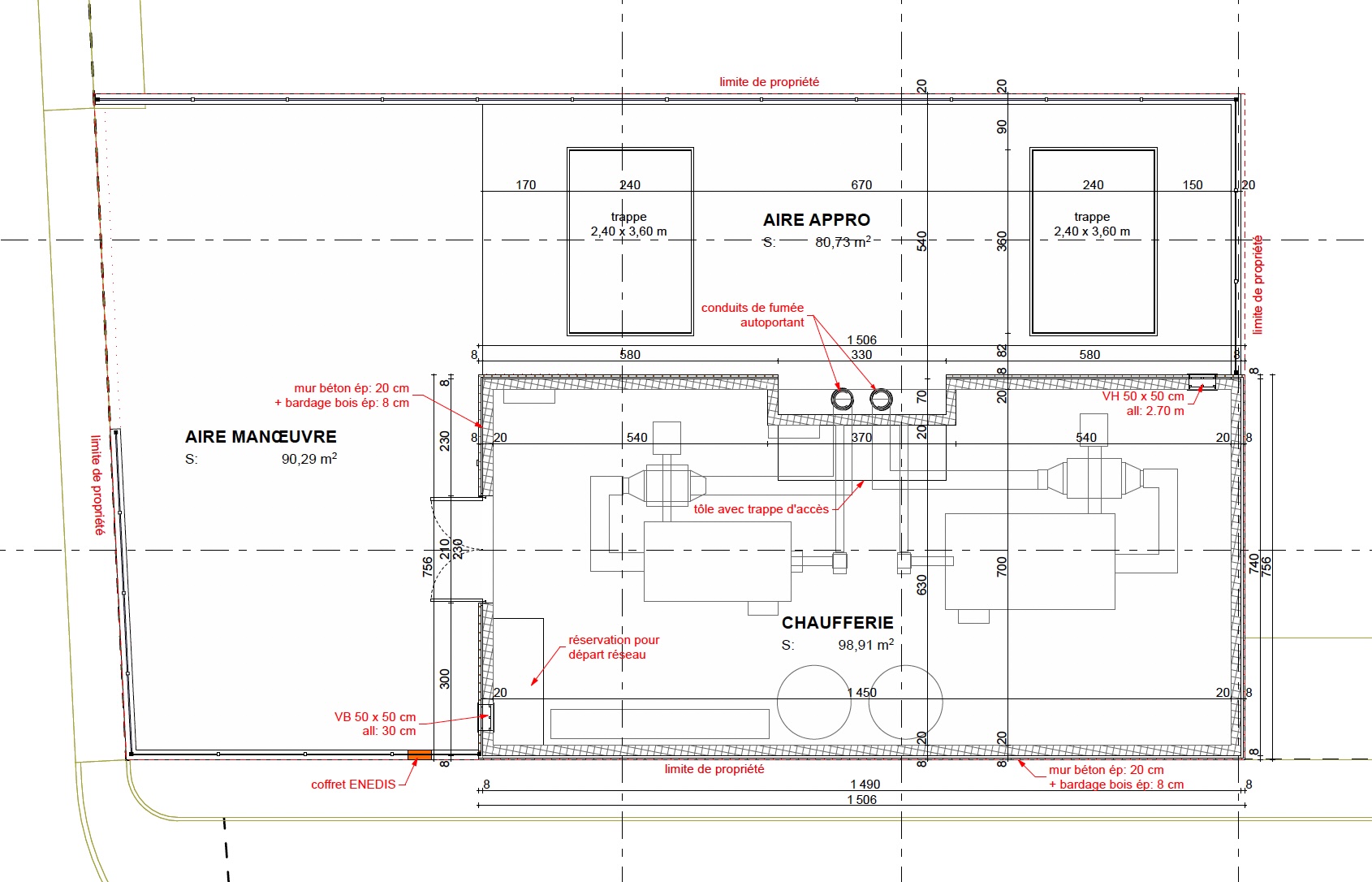
Le projet situé à proximité du centre bourg de Givry sur une partie du terrain du Collège des Petits Prétans, entre dans le cadre des aides de la Région Bourgogne Franche-Comté pour la mise en oeuvre de chauffage au bois déchiqueté dans les communes rurales.
Il consiste à construire une chaufferie automatique au bois déchiqueté de 800 kW et de créer un réseau de chaleur pour chauffer les bâtiments communaux à proximité (Collège, Gymnase, Salle des Fêtes, Ecole maternelle, restaurant scolaire).
Le bâtiment est conçu comme un bâtiment annexe situé en secteur Architecte des Bâtiments de France, de facture architecturale simple pour se fondre dans le bâti environnant.
Il comporte 2 silos enterrés et comprendra une vis sans fin qui alimente 2 chaudières.
Un travail spécifique a été mené pour limiter les interactions entre les manoeuvres d’alimentation et les collégiens prenant le bus à proximité.








Gwénaële Bessard (1970 -) est diplômée de l’Ecole Spéciale d’Architecture (DESA) en 1996. Elle travaille en collaboration pour le cabinet Elizabeth de Portzamparc où elle approfondit ses compétences sur des projets prestigieux et participe à la mise au point d’aménagements d’intérieurs et de mobiliers. Elle travaille ensuite chez Architral – Gérard Barrau comme assistante de chef de projet sur des aménagements d’enseignes commerciales (FNAC, LA REDOUTE, LA HALLE AUX VETEMENTS, ORCHESTRA) puis chez MONOPRIX au service architecture. En 2005 elle quitte Paris et travaille chez CHABANNES ET PARTENAIRES à Chalon-sur-Saône sur des projets importants, puis chez ARCHITECTES STUDIO (Gilles Gauvain Architecte) comme chef de projet.
Elle rejoint Louis Bessard en 2009 comme architecte et dans la continuité de l’expérience acquise assure le suivi des projets de la phase de conception jusqu’à la décoration intérieure pour une clientèle privée haut de gamme.

Après des études d’ingénieur à l’ENSAIS (Strasbourg) et une année de service militaire dans le Génie à Versailles, Louis BESSARD (1967-) entre à l’Ecole Spéciale d’Architecture (DESA) dont il sort diplômé en 1995. Il a travaillé en tant que chef de projet sur des projets publics et privés chez AAUPC (Patrick Chavannes Architecte – Paris) et ouvre l’agence Louis BESSARD Architecte à Paris en 1998. En 2005, les principaux contrats traités par l’agence sont situés en Bourgogne, l’agence se relocalise à Chalon-sur-Saône afin de mieux suivre les chantiers et de développer l’activité sur place. Il s’installe chez Architectes Studio (Gilles Gauvain Architecte) en tant que collaborateur libéral où il développe sa clientèle et travaille en collaboration avec l’agence Architectes Studio sur des projets publics et privés.
En 2009, l’agence a augmenté de manière significative son activité et Louis Bessard déménage son agence où il est rejoint par Gwénaële Bessard Architecte DESA.
Indépendamment de son activité d’architecte et de maîtrise d’œuvre, Louis Bessard est membre de plusieurs organisations professionnelles où il défend la profession d’architecte et participe à des travaux de réflexion générale dans des domaines aussi divers que l’urbanisme, le développement durable, l’amélioration des relations architectes/entreprises…
Sa méthode de travail repose sur la recherche de projets variés permettant de croiser les expériences, sur une conception flexible, et mise au point rigoureuse des projets.
La gestion des chantiers est organisée autour d’un dialogue permanent avec tous les intervenants pour adapter et améliorer les projets jusqu’à leur réception.
Mentions Légales
PROPRIÉTAIRE : SARL KIOSK Architectes – 34 rue Jean Moulin – 71100 Chalon-sur-Saône
DESIGN ET RÉALISATION : Agence CREAGENE et AD&C
HÉBERGEMENT : AMEN
PROPRIÉTÉ INTELLECTUELLE
Toute reproduction ou distribution non autorisée de tout ou partie des éléments et informations de ce site est interdite. Le contenu est disponible pour un usage privé et non collectif.
Le code de la propriété intellectuelle n’autorisant, aux termes de l’article L. 122-5.2° et 3°a, d’une part, que les « copies ou reproductions strictement réservées à l’usage privé du copiste et non destinées à une utilisation collective » et, d’autre part, que les analyses et les courtes citations dans un but d’exemple et d’illustration, « toute représentation ou reproduction intégrale ou partielle faite sans le consentement de l’auteur ou de ses ayants droit ou ayants cause est illicite » (art. L. 122-4). Cette représentation ou reproduction, par quelque procédé que ce soit constituerait donc une contrefaçon sanctionnée par les articles L. 335-2 et suivants du code de la propriété intellectuelle.
INFORMATIQUES ET LIBERTÉS (CNIL)
Protection et utilisation des données : les utilisateurs ayant déposé dans le site des informations nominatives peuvent demander la communication des informations nominatives les concernant à l’administrateur du site et les faire rectifier le cas échéant, conformément à la loi française N° 78-17 du 6 janvier 1978 relative à l’informatique, aux fichiers et aux libertés. Ils peuvent exercer ces droits en adressant un courrier à : SARL KIOSK Architectes – 34 rue Jean Moulin – 71100 Chalon-sur-Saône
MARQUES ET LOGOS, LIENS HYPERTEXTES
Toute utilisation quelle qu’elle soit des noms de marques et logos de ce site est interdite sans l’autorisation de la SARL KIOSK Architectes. De même, tous liens hypertextes visant ce site sont soumis à autorisation préalable.
CONFIDENTIALITÉ / REFUS DES COOKIES
Vous êtes libre d’accepter ou de refuser les cookies en configurant votre navigateur (désactivation de tout ou partie des cookies – voir manuel de votre navigateur Web ou fonction d’aide).
La désactivation des cookies peut entraîner l’indisponibilité de certains services auxquels ils sont associés. Elle n’empêche pas l’accès aux espaces non-réservés du site.
Par ailleurs, nous gardons trace des connexions à nos sites, et notamment de leur origine. Cette utilisation est faite à des fins d’analyses statistiques. Les données correspondantes ne comportent pas de données personnelles, et sont détruites après usage.

Après des études d’ingénieur à l’ENSAIS (Strasbourg) et une année de service militaire dans le Génie à Versailles, Louis BESSARD (1967-) entre à l’Ecole Spéciale d’Architecture (DESA) dont il sort diplômé en 1995. Il a travaillé en tant que chef de projet sur des projets publics et privés chez AAUPC (Patrick Chavannes Architecte – Paris) et ouvre l’agence Louis BESSARD Architecte à Paris en 1998. En 2005, les principaux contrats traités par l’agence sont situés en Bourgogne, l’agence se relocalise à Chalon-sur-Saône afin de mieux suivre les chantiers et de développer l’activité sur place. Il s’installe chez Architectes Studio (Gilles Gauvain Architecte) en tant que collaborateur libéral où il développe sa clientèle et travaille en collaboration avec l’agence Architectes Studio sur des projets publics et privés.
En 2009, l’agence a augmenté de manière significative son activité et Louis Bessard déménage son agence où il est rejoint par Gwénaële Bessard Architecte DESA.
Indépendamment de son activité d’architecte et de maîtrise d’œuvre, Louis Bessard est membre de plusieurs organisations professionnelles où il défend la profession d’architecte et participe à des travaux de réflexion générale dans des domaines aussi divers que l’urbanisme, le développement durable, l’amélioration des relations architectes/entreprises…
Sa méthode de travail repose sur la recherche de projets variés permettant de croiser les expériences, sur une conception flexible, et mise au point rigoureuse des projets.
La gestion des chantiers est organisée autour d’un dialogue permanent avec tous les intervenants pour adapter et améliorer les projets jusqu’à leur réception.

Après des études d’ingénieur à l’ENSAIS (Strasbourg) et une année de service militaire dans le Génie à Versailles, Louis BESSARD (1967-) entre à l’Ecole Spéciale d’Architecture (DESA) dont il sort diplômé en 1995. Il a travaillé en tant que chef de projet sur des projets publics et privés chez AAUPC (Patrick Chavannes Architecte – Paris) et ouvre l’agence Louis BESSARD Architecte à Paris en 1998. En 2005, les principaux contrats traités par l’agence sont situés en Bourgogne, l’agence se relocalise à Chalon-sur-Saône afin de mieux suivre les chantiers et de développer l’activité sur place. Il s’installe chez Architectes Studio (Gilles Gauvain Architecte) en tant que collaborateur libéral où il développe sa clientèle et travaille en collaboration avec l’agence Architectes Studio sur des projets publics et privés.
En 2009, l’agence a augmenté de manière significative son activité et Louis Bessard déménage son agence où il est rejoint par Gwénaële Bessard Architecte DESA.
Indépendamment de son activité d’architecte et de maîtrise d’œuvre, Louis Bessard est membre de plusieurs organisations professionnelles où il défend la profession d’architecte et participe à des travaux de réflexion générale dans des domaines aussi divers que l’urbanisme, le développement durable, l’amélioration des relations architectes/entreprises…
Sa méthode de travail repose sur la recherche de projets variés permettant de croiser les expériences, sur une conception flexible, et mise au point rigoureuse des projets.
La gestion des chantiers est organisée autour d’un dialogue permanent avec tous les intervenants pour adapter et améliorer les projets jusqu’à leur réception.

Après des études d’ingénieur à l’ENSAIS (Strasbourg) et une année de service militaire dans le Génie à Versailles, Louis BESSARD (1967-) entre à l’Ecole Spéciale d’Architecture (DESA) dont il sort diplômé en 1995. Il a travaillé en tant que chef de projet sur des projets publics et privés chez AAUPC (Patrick Chavannes Architecte – Paris) et ouvre l’agence Louis BESSARD Architecte à Paris en 1998. En 2005, les principaux contrats traités par l’agence sont situés en Bourgogne, l’agence se relocalise à Chalon-sur-Saône afin de mieux suivre les chantiers et de développer l’activité sur place. Il s’installe chez Architectes Studio (Gilles Gauvain Architecte) en tant que collaborateur libéral où il développe sa clientèle et travaille en collaboration avec l’agence Architectes Studio sur des projets publics et privés.
En 2009, l’agence a augmenté de manière significative son activité et Louis Bessard déménage son agence où il est rejoint par Gwénaële Bessard Architecte DESA.
Indépendamment de son activité d’architecte et de maîtrise d’œuvre, Louis Bessard est membre de plusieurs organisations professionnelles où il défend la profession d’architecte et participe à des travaux de réflexion générale dans des domaines aussi divers que l’urbanisme, le développement durable, l’amélioration des relations architectes/entreprises…
Sa méthode de travail repose sur la recherche de projets variés permettant de croiser les expériences, sur une conception flexible, et mise au point rigoureuse des projets.
La gestion des chantiers est organisée autour d’un dialogue permanent avec tous les intervenants pour adapter et améliorer les projets jusqu’à leur réception.

Après des études d’ingénieur à l’ENSAIS (Strasbourg) et une année de service militaire dans le Génie à Versailles, Louis BESSARD (1967-) entre à l’Ecole Spéciale d’Architecture (DESA) dont il sort diplômé en 1995. Il a travaillé en tant que chef de projet sur des projets publics et privés chez AAUPC (Patrick Chavannes Architecte – Paris) et ouvre l’agence Louis BESSARD Architecte à Paris en 1998. En 2005, les principaux contrats traités par l’agence sont situés en Bourgogne, l’agence se relocalise à Chalon-sur-Saône afin de mieux suivre les chantiers et de développer l’activité sur place. Il s’installe chez Architectes Studio (Gilles Gauvain Architecte) en tant que collaborateur libéral où il développe sa clientèle et travaille en collaboration avec l’agence Architectes Studio sur des projets publics et privés.
En 2009, l’agence a augmenté de manière significative son activité et Louis Bessard déménage son agence où il est rejoint par Gwénaële Bessard Architecte DESA.
Indépendamment de son activité d’architecte et de maîtrise d’œuvre, Louis Bessard est membre de plusieurs organisations professionnelles où il défend la profession d’architecte et participe à des travaux de réflexion générale dans des domaines aussi divers que l’urbanisme, le développement durable, l’amélioration des relations architectes/entreprises…
Sa méthode de travail repose sur la recherche de projets variés permettant de croiser les expériences, sur une conception flexible, et mise au point rigoureuse des projets.
La gestion des chantiers est organisée autour d’un dialogue permanent avec tous les intervenants pour adapter et améliorer les projets jusqu’à leur réception.